North Fremantle Prefab Residence

Year
2015

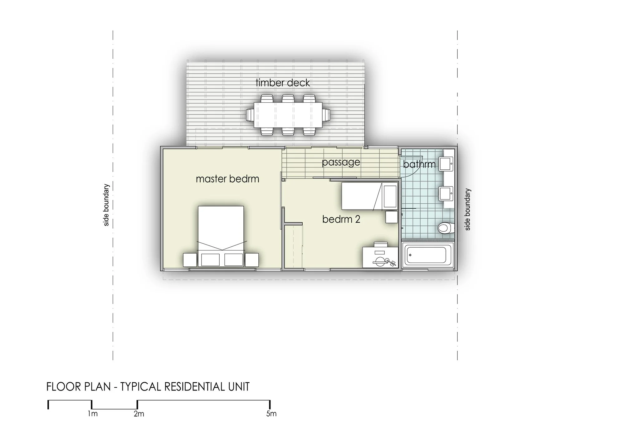
Designed to be craned into position due to the challenging “land-locked” location of the site, this modest prefabricated addition to an existing house in North Fremantle was also designed to fulfill the client’s desire for minimal disruption to their life while achieving maximum effect. 

Housing two bedrooms and a bathroom, the addition complements the family’s existing home with much-needed facilities, and was achieved to a modest budget, partly due to the fact the building was prefabricated. 

An elegant solution to a complex problem, and all done in a day on site.