Cox residence

Year
2026

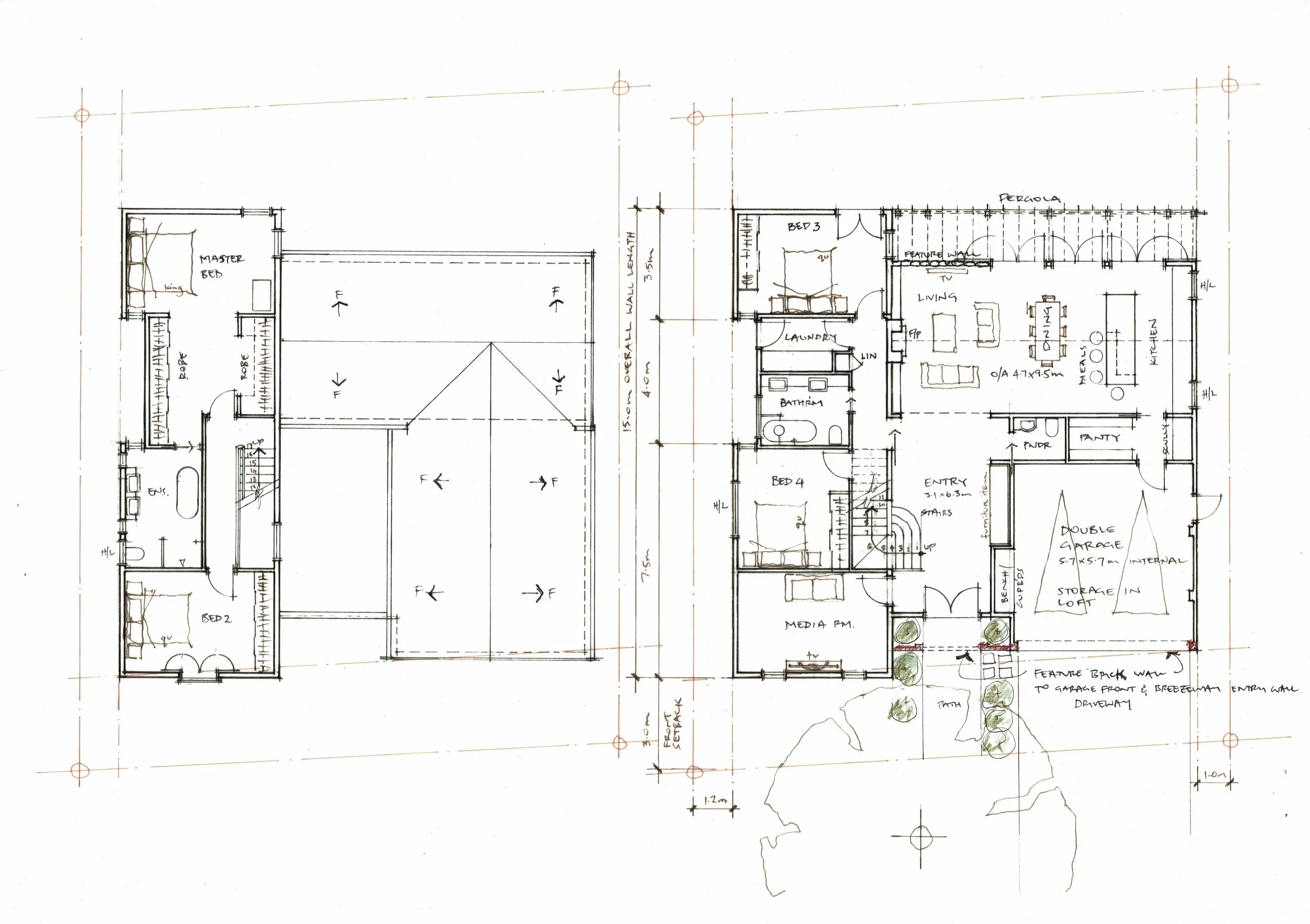
Currently under construction this house in Myaree is the second to be designed for clients Jane and Stephen. Sitting on the 3rd block of this subdivided corner block, with rear boundary facing north, the building is designed as a split single storey/ two storey house, with living areas facing opening out onto the private north facing courtyard at ground level. This portion represents the single-storey component and will have expressed ceilings to add to the generous feeling of openness.

The two-storey component houses 2 bedrooms, bathroom and second living space at ground level, and two bedrooms above, one being the master suite with generous walk-through robe and ensuite with free standing tub.

Designed in a contemporary country style, with interiors to match, the project will be completed later this year.