St Michael and All Angels Church, Spearwood

Year
2025

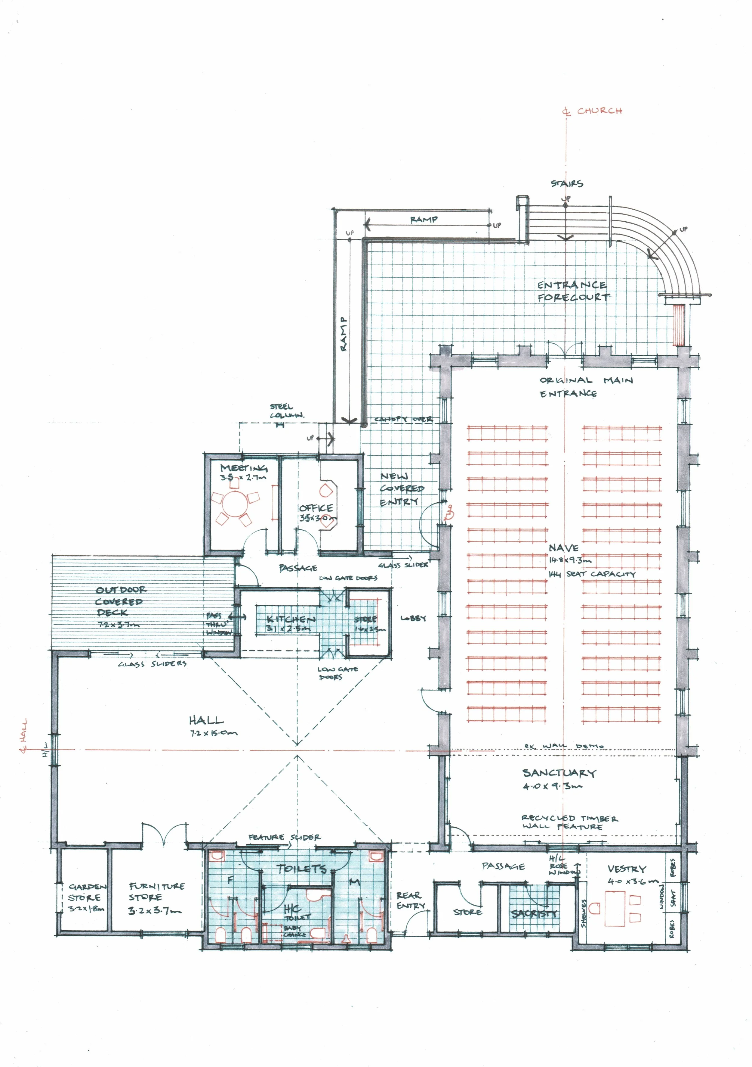
The existing church building was constructed in 1916, in Victorian Free Gothic style, with gabled façade in coursed smooth faced limestone and tuck-pointed brick quoining. It was originally built as a Hall, to be later complemented with a church building, which never happened. It was later modified to accommodate regular worship practices rather than hall practices in the absence of a separate church.

Being heritage listed with both the City of Cockburn and the state Heritage Council of WA’s InHerit database as Place No. 2718, careful consideration was needed to modify and extend the existing building for the growing parish, with additional worship space and a new sanctuary. The brief also called for the addition of a substantial multi-purpose Hall space, with associated offices, meeting room, kitchen, toilets and storage, new priest vestry, and upgrades to external parking and landscaped grounds.

The building addition is designed to pay homage to the existing building architectural forms, materials and style in a contemporary and respectful manner, using brick as the predominant material, and patterning in Flemish bond style. Steel framed canopy provides cover to the new accessible side entrance in a minimal architectural style, connecting with the original with a light touch.

The project has just been granted planning approval, with detailed construction documentation to now follow, and construction expected to commence in the first half of 2026.

Next Project